MODELO TRADICIONAL
108 mts / 6 aguas
Nuestros materiales son de primera calidad, ya que participamos del proceso de fabricación de su casa desde principio a fin.
18X6
6
2


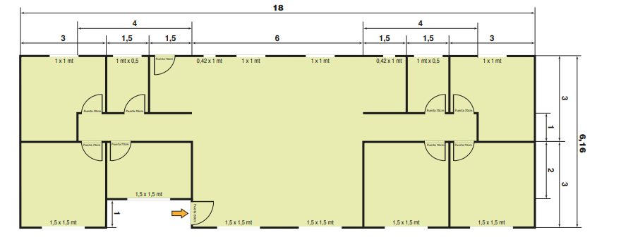
DISTRIBUCIÓN
- 5 dormitorios de 3 x 3 mts.
- 1 dormitorio de 2 x 3 mts.
- 2 Baños de 1,5 x 2 mts.
- Cocina de 1,5 x 2 mts.
Living/Comedor de 6 x 6 mts. - Pasillos de 1 x 4 mts.
- Porche de 1 x 3 mts.

